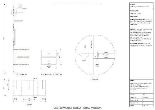
DETAILED WORKING DRAWING - TV UNIT
Zurück
Weiter